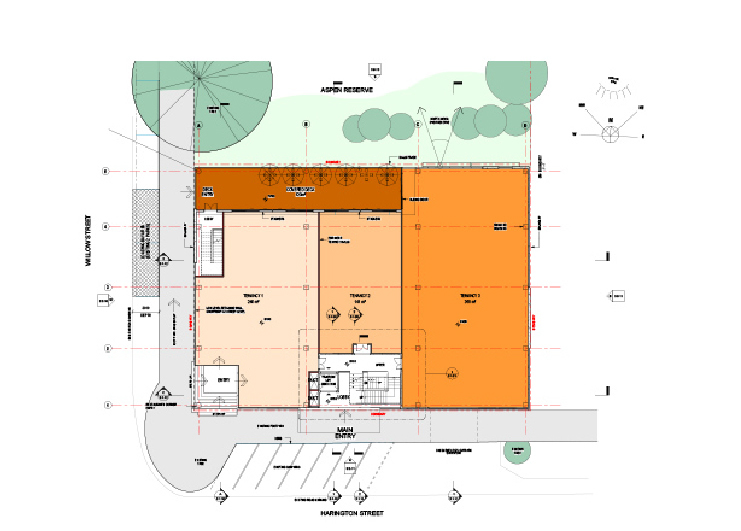
The Reserve
The Reserve offers a harmonious balance of natural and urban design that delivers a office space unlike any other.
With views onto the reserve and down to the inner harbour The Reserve is an amazing addition to downtown Tauranga and those lucky enough to work there.
ARCHITECT
First Principles
BUILDER
Brunel Group Ltd
SIZE
4,000m2 / 3 Levels

Location
100 Metres from the Strand, Tauranga. The Reserve is so named because it is next to the 1012sq m council reserve, on the corner of Willow St and Harington St. With views onto the reserve and down to the inner harbour The Reserve is an amazing addition to downtown Tauranga and those lucky enough to work there.




